Aller au contenu principal

Location Appartement 2 pièce(s) de 29.28 m2

Rennes
-
496 €

réf.
MAR-60637

Un conseiller à votre écoute

Service Location
02.99.67.22.44
Merci de me répondre par :
* champs obligatoires

En soumettant ce formulaire, j'ai bien pris connaissance que les informations saisies seront exploitées dans le cadre de la gestion de ma demande. Voir les mentions légales

Présentation du bien

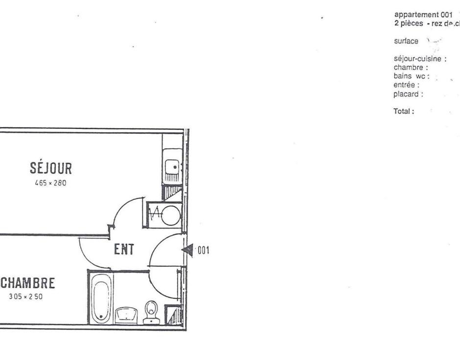
Le Cabinet Martin by Come vous propose à la location cet appartement T2 d'une surface habitable de 29.28m2 situé à RENNES.

Ce charmant appartement se compose d'un coin cuisine équipée ( plaque, réfrigérateur) , un séjour, 1 chambre, salle de bain et W.C séparé.
De plus le bien dispose d'une place de parking privative en souterrain.

Ne manquez pas cette opportunité ! Contactez dès maintenant le cabinet au 02 99 67 22 44, en précisant la référence MAR-60637.
Pour plus d'informations sur les risques éventuels liés à ce bien, rendez-vous sur le site officiel Géorisques.

HC

Informations complémentaires

  • Pièce(s) :
    2
  • Loyer :
    496 €
  • Dépôt de garantie :
    466.23 €
  • Honoraires d'agence :
    87.84 € (à la charge du locataire)
    dont frais de visite, dossier et bail : 0.00 €
    dont frais d'état des lieux : 87.84 €
  • Provision sur charges :
    30.00 €
Information non contractuelles.
CC : charges comprises | FAI : frais d'agences inclus | * Surface approximative non vérifiée

Dépenses énergétiques

consommation (énergie primaire) émissions 236 KWh/m² par an kgCO₂/m² par an logement très performant logement extrêmement peu performant DPE_ DPE_
236 kg CO₂/m² par an A B C D E F G émissions de CO₂ très importantes peu d'émissions de CO₂ * Dont émissions de gaz à effet de serre
consommation (énergie primaire) émissions 236 KWh/m² par an kgCO₂/m² par an logement très performant logement extrêmement peu performant DPE_ DPE_
236 kg CO₂/m² par an A B C D E F G émissions de CO₂ très importantes peu d'émissions de CO₂ * Dont émissions de gaz à effet de serre
Affichage :